工程名称:汉高科技原料试剂防爆冷库工程
客户全称及介绍:汉高化学技术(上海)有限公司,汉高化学技术(上海)有限公司隶属于汉高集团。汉高是一家拥有130多年历史的跨国集团,全球有125个国家和地区
的消费者信赖汉高的品牌和技术。汉高是财富500强企业。
防爆冷库工程温度设计:0~5℃、21~25℃阴凉库
储藏品类:化学原料
储藏方式:制冷、防爆、除湿
设计寿命:30年
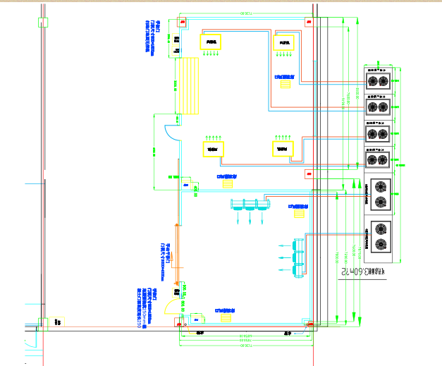
项目介绍:上海汉高龙工厂拟建两座防爆冷库,要求冷库内所有设备以及附件达到EXdⅡBT4防爆级别,0~5度冷库内使用二台比泽尔20匹压缩机组带动二台冷风机、一用一备。阴凉库配备4台大金5匹空调风管机组,三用一备。为了实时监测冷库内的温度,供方在冷库温度控制系统之外,还配置了独立的温度监测设备,下面会详细介绍。本冷库所在的甲类仓库周围15米范围内都属于防爆危险区,所以本防爆冷库应为全防爆冷库,其设计、选型、安装、施工、验收都需符合国家防爆规范要求。乙方应确保冷库验收满足常规冷库验收外,还需通过国家防爆冷库检测验收。
该防爆冷库工程主要分为7.2*7.05*6.5H(m)的0~5℃保鲜温度、9.2*7.1*6.5H(m)的21~25℃的恒温阴凉库。该项目库房保温部分设计为五面体,保温材料全选用100mm聚氨酯FM认证B1级0.6宝钢双面彩钢阻燃保温板,单开双面彩钢手拉门,保温滑升门。3mm的地面防水SBS,100mm厚度挤塑板。ExdⅡBT4双面彩钢单开电动平移门,单开双面彩钢手拉门 ,防爆加强型风幕机ExdⅡBT4 ,改装防爆静压5匹风管机ExdⅡBT4,冷库压力平衡窗 ,比泽尔改装半封闭防爆风冷机组 ExdⅡBT4,康达托
改装工业型高效防爆冷风机ExdⅡBT4 ,新风口(带止回阀),空调送风口,丹弗斯热力膨胀阀,冷库专用防爆灯具电控箱。业主需将380v电源送至冷库电箱,机组基础由用户负责、冷库质保一年,防爆冷库造价可来电咨询。
防爆冷库设计图纸展示:
风暴冷库施工完工现场图片:




